توضیحات کاره

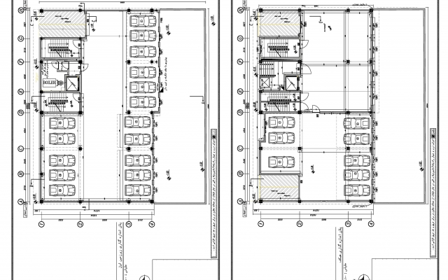
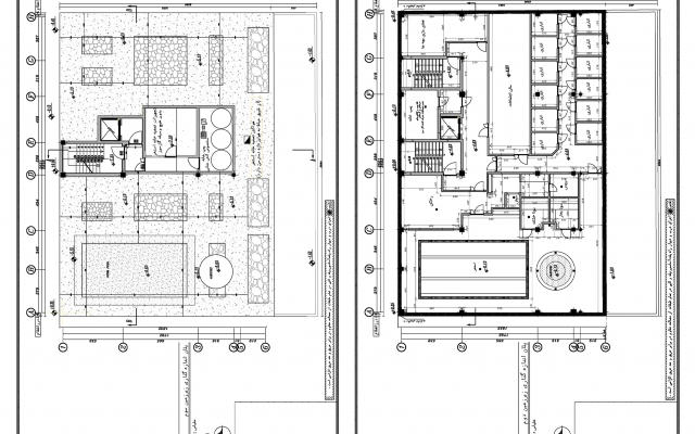
خدمت اصلی من، تبدیل ایده‌های اولیه شما به نقشه‌های معماری استاندارد و هوشمند با استفاده از نرم‌افزار تخصصی Revit (مدل‌سازی BIM) است. این مدل هوشمند، خطاهای اجرایی را به صفر می‌رساند و سازگاری کامل بین پلان، برش و نما را تضمین می‌کند.

✅ ضمانت انطباق با ضوابط شهرداری:

تمامی نقشه‌های طراحی شده بر اساس آخرین ضوابط و مقررات فنی و شهرسازی شهرداری  ترسیم می‌شوند تا فرآیند اخذ مجوز و تأییدیه‌ها با حداقل مشکل انجام پذیرد.

 ارتقاء پروژه شما: در صورت نیاز، من می‌توانیم خدمات تکمیلی مانند طراحی نما و رندرینگ و سه‌بعدی حرفه‌ای را نیز به صورت جداگانه و با اعلام هزینه به شما ارائه دهیم تا یک بسته طراحی کامل در اختیار داشته باشید.

در صورت وجود هرگونه سوال یا ابهام قبل از ثبت سفارش با من در ارتباط باشید

مشتری بعد از انجام سفارش، به طور مشخص موارد زیر را تحویل خواهد گرفت:

 

✅ آنچه پس از خرید به شما تحویل داده خواهد شد:

 

  1. مدل سه‌بعدی BIM: فایل اصلی پروژه با فرمت RVT (نرم‌افزار Revit) برای استفاده‌های بعدی و بررسی دقیق سازگاری‌ها.

  2. نقشه‌های ترسیمی ۲D:

    • پلان‌های فاز یک (استاندارد): شامل پلان‌های طبقات، اندازه‌گذاری، آکس‌بندی و مبلمان.

    • پلان‌های فاز دو (اجرایی): نقشه‌های دقیق برای ساخت، شامل جزئیات اجرایی و مشخصات فنی اولیه.

  3. تصاویر دوبعدی و خروجی چاپی:

    • دو برش و دو نما از نقاط اصلی پروژه (در مقیاس مناسب).

    • نقشه‌های شیت‌بندی شده با فرمت PDF (آماده برای چاپ و ارائه).

  4. فایل‌های قابل ویرایش:

    • تمامی نقشه‌های ۲D با فرمت DWG (قابل ویرایش در نرم‌افزار AutoCAD).

    مرور جزئیات و ثبت درخواست پروژه اختصاصی

    قیمت پایه  برای  متر مربع 7 روز 120,000 تومان
    انجام بیش از یک بار اصلاحات (نامحدود) +1 روز +30,000 تومان
    ارسال فایل لایه باز +1 روز +5,000 تومان
    سایر خدمات اختصاصی (نیازمند بررسی)   توافقی
    ثبت سفارش برای این کاره فقط از طریق پروژه اختصاصی ممکن است.